Leave a Message

Thank you for your message. We will be in touch with you shortly.

Explore Our Properties

Property Description

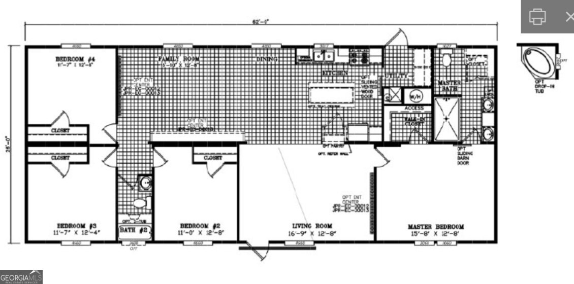
Enjoy this brand new manufactured home! Price includes the land + complete setup for this home. 100% financing construction to perm is possible through USDA if you qualify. You can also choose your own features and model if this one doesn't suit your needs-final price may vary based on selections. About this home: Features to Love: Spacious and Bright Interior: * Open-concept design with ample space for entertaining and everyday living. * Large family and dining areas to host your New Year's gatherings in style. Dream Kitchen: * Modern kitchen with an oversized island, upgraded countertops, and sleek cabinetry. * Stainless steel appliances and plenty of storage for all your cooking needs. Private Primary Suite: * Enjoy your personal retreat with a spacious bedroom, walk-in closet, and an optional glamour bath upgrade. * Dual vanities and a large shower make mornings a breeze. Versatile Layout: * Two additional bedrooms perfect for family, guests, or a home office. * Optional fourth bedroom for even more space. Floor Plan Highlights: * Thoughtful design with an open living room, utility area, and pantry. * Smart features to maximize space and convenience. Exterior: * Stylish siding and modern design ensure this home stands out in any community.

Overview

Property Status
For Sale
Lot Size
2.26 Acres
MLS ID
10674880
Property Type
Residential
Year Built
2026

Features & Amenities

Total Area
1,564 Sq.Ft.
Architecture Styles
Ranch
Stories
1
Water Source
Public
Utilites
Cable Available, Electricity Available, High Speed Internet, Phone Available, Water Available
Roof
Composition
Lot Features
Private
Parking
None
Heat Type
Electric
Air Conditioning
Electric
Laundry Room
Laundry Closet
Appliances
Dishwasher, Microwave, Range, Refrigerator
Other Interior Features
Double Vanity, Separate Shower, Split Bedroom Plan, Walk-In Closet(s)
Sewer
Septic Tank
Elementary School
Jordan Hill Road
Middle School
Kennedy Road
High School
Spalding
Sales Price
$270,000
Real Estate Tax
$530/yr

Downloads

234 Vaughn Circle

Schedule a Tour

We would love to help you see this beautiful home! As a full-service brokerage, we can help you tour. Please submit an offer, and answer questions about the buying process.

Thank you

for your interest in 234 Vaughn Circle, Griffin, GA 30223

234 Vaughn Circle
Navigate

Mortgage Calculator

Estimate your monthly mortgage payment, including the principal and interest, property taxes, and HOA. Adjust the values to generate a more accurate rate.
$0,000 Your Payment 20 15 65
$0,000 Your Payment

I'm Interested In

234 Vaughn Circle

or
  • CallTria Kreutzer

    License #378058

    (404) 449-5547
  • Follow Us On Instagram