Leave a Message

Thank you for your message. We will be in touch with you shortly.

Explore Our Properties

Property Description

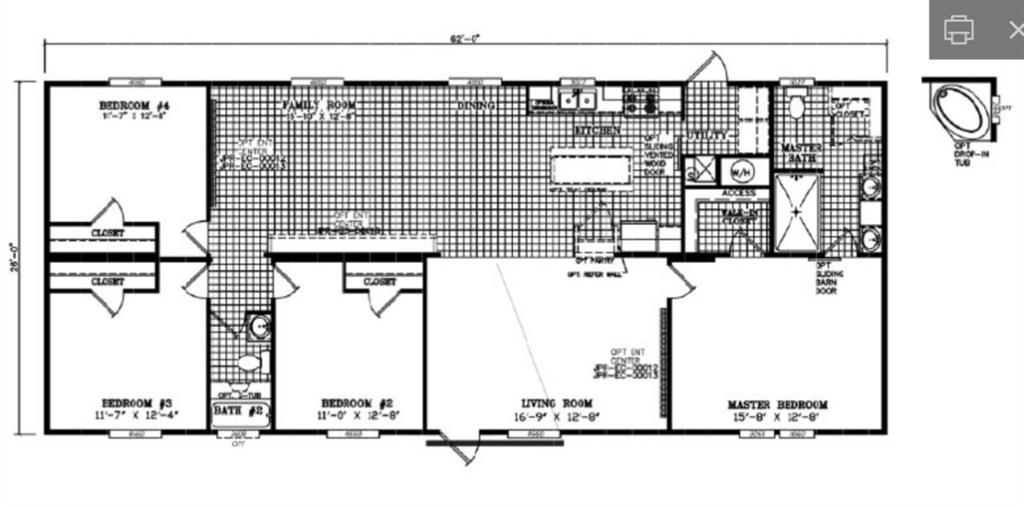
Enjoy this new manufactured home. Price includes land + complete set up for this home. You can choose your own features and model if this one doesn't suit you so price could vary. About this home: Features to Love: Spacious and Bright Interior: * Open-concept design with ample space for entertaining and everyday living. * Large family and dining areas to host your New Year's gatherings in style. Dream Kitchen: * Modern kitchen with an oversized island, upgraded countertops, and sleek cabinetry. * Stainless steel appliances and plenty of storage for all your cooking needs. Private Primary Suite: * Enjoy your personal retreat with a spacious bedroom, walk-in closet, and an optional glamour bath upgrade. * Dual vanities and a large shower make mornings a breeze. Versatile Layout: * Two additional bedrooms perfect for family, guests, or a home office. * Optional fourth bedroom for even more space. Floor Plan Highlights: * Thoughtful design with an open living room, utility area, and pantry. * Smart features to maximize space and convenience. Exterior: * Stylish siding and modern design ensure this home stands out in any community.

Overview

Property Status
For Sale
Lot Size
2.26 Acres
MLS ID
7706339
Property Type
Residential
Year Built
2026

Features & Amenities

Architecture Styles
Ranch
Water Frontage
None
View Description
Rural, Trees/Woods
Stories
1
Water Source
Public
Utilites
Cable Available, Electricity Available, Phone Available, Water Available
Pool
None
Roof
Composition
Lot Features
Private
Parking
None
Heat Type
Electric
Air Conditioning
Electric
Laundry Room
Laundry Closet, Laundry Room
Fireplace
None
Appliances
Dishwasher, Microwave, Refrigerator
Other Interior Features
Double Vanity, High Speed Internet, Walk-In Closet(s)
Sewer
Septic Tank
Substructure
None
Disability Features
None
Security Features
None
Green Feature
None
Other Exterior Features
Private Yard
Elementary School
Jordan Hill Road
Middle School
Kennedy Road
High School
Spalding
Sales Price
$270,000
Real Estate Tax
$530/yr

Downloads

234 Vaughn Circle

Schedule a Tour

We would love to help you see this beautiful home! As a full-service brokerage, we can help you tour. Please submit an offer, and answer questions about the buying process.

Thank you

for your interest in 234 Vaughn Circle, Griffin, GA 30223

234 Vaughn Circle
Navigate

Mortgage Calculator

Estimate your monthly mortgage payment, including the principal and interest, property taxes, and HOA. Adjust the values to generate a more accurate rate.
$0,000 Your Payment 20 15 65
$0,000 Your Payment

I'm Interested In

234 Vaughn Circle

or
  • CallTria Kreutzer

    License #378058

    (404) 449-5547
  • Follow Us On Instagram