Leave a Message

Thank you for your message. We will be in touch with you shortly.

Explore Our Properties

Property Description

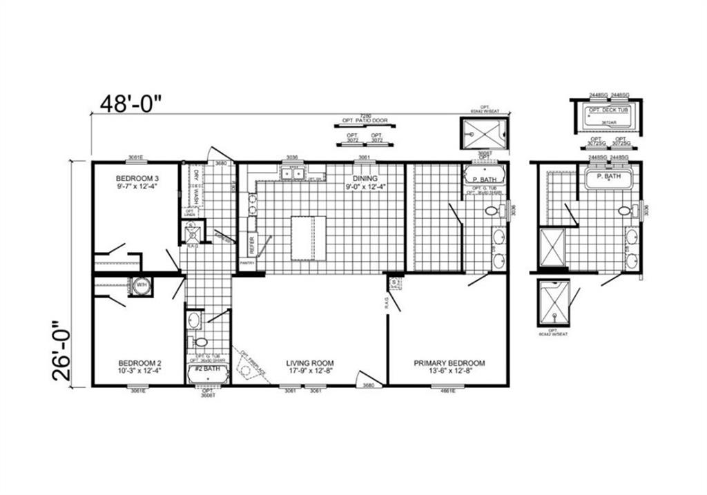
Build Your Dream Home - This beautiful 3-bedroom, 2-bath modular home can be yours in just 3-4 months! Choose this home or a variety of thoughtfully designed models at other price ranges. This sprawling 1.64 acre lot is nestled right alongside the serene Holden Creek, offering breathtaking creek views and waterfront access that make it a nature lover's paradise and with no HOA or restrictions you can turn it into an income generating property as well.

Overview

Property Status
For Sale
Lot Size
1.64 Acres
MLS ID
7698051
Property Type
Residential
Year Built
2025

Features & Amenities

Architecture Styles
Ranch
Water Frontage
Creek, Waterfront
View Description
Creek/Stream, Mountain(s)
Stories
1
Water Source
Public
Utilites
Cable Available, Electricity Available, Phone Available, Water Available
Pool
None
Roof
Composition
Lot Features
Level
Parking
None
Heat Type
Electric
Air Conditioning
Electric
Laundry Room
In Kitchen, Laundry Room
Fireplace
None
Appliances
Dishwasher, Microwave, Refrigerator
Other Interior Features
Double Vanity, High Speed Internet, Walk-In Closet(s)
Sewer
Septic Tank
Substructure
None
Disability Features
None
Security Features
None
Green Feature
None
Other Exterior Features
None
Elementary School
Ellijay
Middle School
Clear Creek
High School
Gilmer
Sales Price
$290,000
Real Estate Tax
$161/yr

Downloads

0 Nocona Trail

Schedule a Tour

We would love to help you see this beautiful home! As a full-service brokerage, we can help you tour. Please submit an offer, and answer questions about the buying process.

Enter a valid email

Thank you

for your interest in 0 Nocona Trail, Ellijay, GA 30536

back to page
0 Nocona Trail
Navigate

Mortgage Calculator

Estimate your monthly mortgage payment, including the principal and interest, property taxes, and HOA. Adjust the values to generate a more accurate rate.
$0,000 Your Payment 20 15 65
$0,000 Your Payment

I'm Interested In

0 Nocona Trail

or
  • CallTria Kreutzer

    License #378058

    (404) 449-5547
  • Follow Us On Instagram